Duplex de 3 ambientes con jardin, cochera y baulera
USD 210.000 - EN VENTA
Descripción
🌿 Tres ambientes con jardín en Saavedra / Núñez — Dúplex con cochera y excelente luz
Te presento una propiedad con alma de casa, ubicada en el corazón de Saavedra, casi tocando Núñez: un barrio tranquilo, verde y bien conectado, donde la vida cotidiana se disfruta en cada rincón.
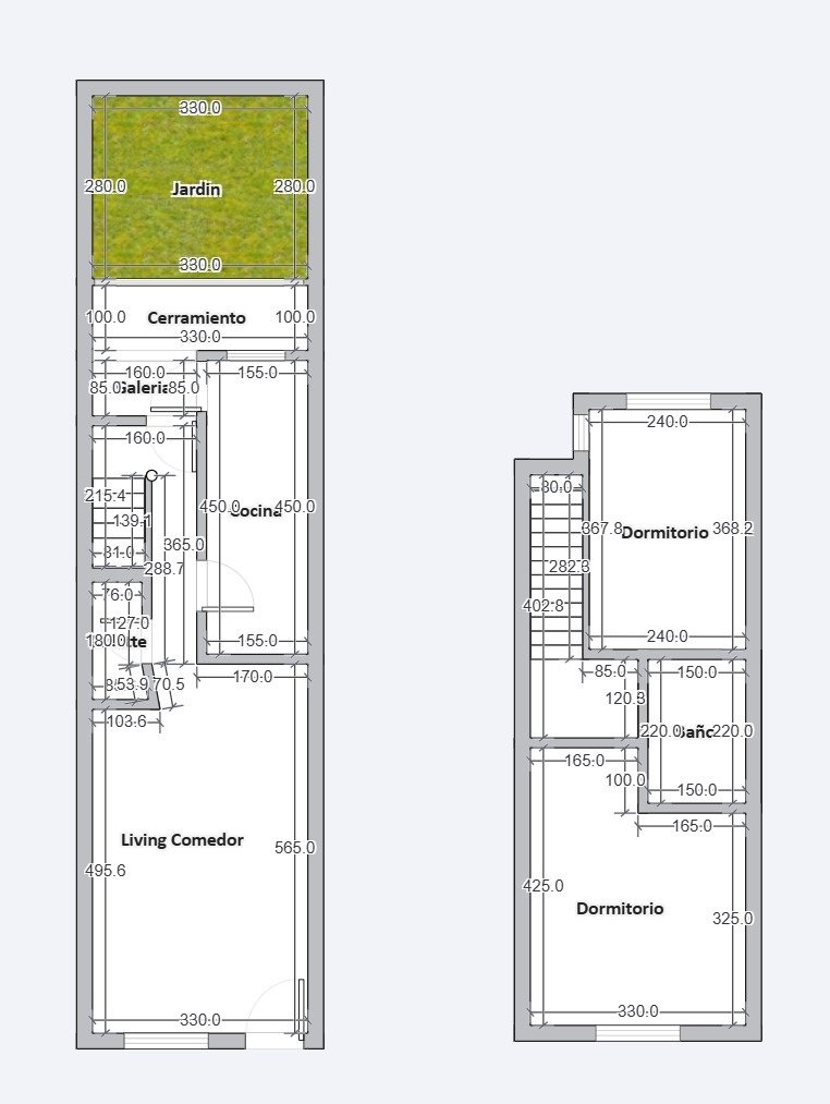
📍 La unidad
Este hermoso dúplex de tres ambientes al frente combina la calidez de un hogar con la funcionalidad de un departamento moderno. En primer piso, está distribuido en dos plantas y ofrece espacios amplios, luminosos y con muy buena circulación de aire.
Planta baja:
Living-comedor con pisos de parquet impecables y aire acondicionado y estufa.
Toilette
Cocina con lavadero
Fondo con jardín propio para disfrutar desayunos al sol o tardes tranquilas
Planta alta:
Dos dormitorios luminosos cada uno con aire acondicionado.
Baño completo
Además, cuenta con baulera bajo escalera, tres aires acondicionados, estufas a gas, termotanque individual, todos los servicios y un estado general excelente.
📐 Superficie
Cubierta: 64,01 m²
Semicubierta: 1,70 m²
Descubierta (jardín): 13,67 m²
Total: 79,38 m²
🚗 Cochera Fija, cubierta con portón eléctrico y salida directa por calle Besares.
🗄️ Baulera, unidad complementaria.
🏢 El edificio
La propiedad forma parte de un edificio de tres plantas, de impronta sólida y moderna, ubicado en una esquina amplia.
18 unidades funcionales
Ascensor
Antigüedad: 27 años
Estado de conservación: muy bueno
Expensas (Noviembre 2025): $170.000
🌳 El barrio
Saavedra es uno de esos barrios porteños que se disfrutan caminando. Verde, silencioso, residencial, con casas bajas y un ritmo amable. A pasos de Parque Saavedra y Parque Sarmiento, ofrece aire libre, tranquilidad y excelente conexión.
Estás a minutos de Zona Norte y rodeada de accesos y colectivos (14 líneas en la zona del FFCC Mitre), lo que lo convierte en un punto estratégico sin perder su encanto barrial.
💫 ¿Por qué elegir esta propiedad?
Porque combina luz, jardín, comodidad, cochera y ubicación, todo en un dúplex con espíritu de casa.
Ideal para quienes buscan vivir con tranquilidad, rodeados de verde, sin alejarse de la ciudad.
| Detalles | |
|---|---|
| Código | KP479266 |
| Categoría | Departamentos |
| Estado | Activa |
| Ubicación | Amenabar 4000 |
| Zona | Saavedra |
| Barrio | Saavedra |
| Localidad | Capital Federal, Capital Federal |
| Tipo de operación | En venta |
| Ambientes | 3 |
| Dormitorios | 2 |
| Baños | 2 |
| Estacionamientos | 1 |
| Piso | 1 |
| Pisos en el edificio | 3 |
| Mts totales (mt²) | 79.38 |
| Mts cubiertos (mt²) | 64.01 |
| Mts no cubiertos (mt²) | 13.67 |
| Año de construcción | 1997 |
| Expensas | ars 170000.00 |
11 Visitas al momento