✨ Oportunidad única en Núñez – Lote propio con terraza, patio, cochera ✨
USD 650.000 - EN VENTA
Descripción
✨ Casa reciclada con estilo en lote propio – En el Barrio de Núñez ✨
Ubicada en el corazón de Núñez, uno de los barrios más buscados de la ciudad, te presentamos esta propiedad única, totalmente reciclada, con diseño moderno y pensada para disfrutar de cada espacio.
📐 Superficies:
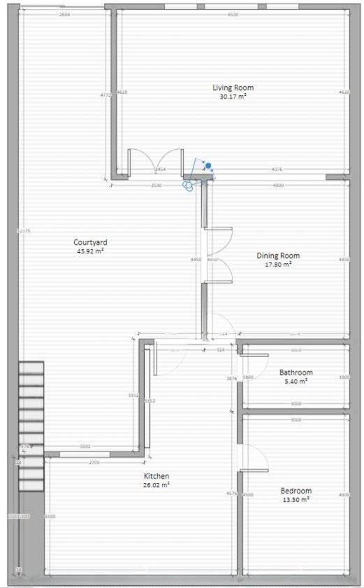
Lote propio de 9,52 m de frente x 16,28 m de fondo (154,98 m² de terreno).
Superficie total: 243 m²
Cubiertos: 135 m² | Descubiertos: 108 m²
🏡 Distribución:
Planta baja:
Amplio y luminoso living-comedor con salida al patio.
Cocina integrada con barra desayunadora, comedor diario y un ventanal de doble altura que conecta interior y exterior, generando un espacio lleno de luz natural.
Habitación contigua a la cocina, ideal como dormitorio adicional, escritorio, playroom o cuarto de huéspedes.
Baño moderno completo.
Patio de 46 m², perfecto para encuentros familiares y sociales.
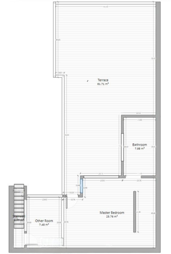
Planta alta:
Escritorio o espacio de trabajo.
Suite principal con vestidor, baño en suite y enorme ventanal al verde.
Salida directa a una gran terraza de 62 m² con duchador, perfecta para relajarse y disfrutar del aire libre en la intimidad del hogar.
✨ Detalles destacados:
Reciclada con materiales de calidad y diseño actual.
Ambientes amplios, funcionales y llenos de luz.
Living, cocina y suite principal con conexión directa a espacios exteriores.
Excelente estado general, lista para habitar.
📍 Ubicación privilegiada:
En pleno Núñez residencial, a metros de Av. Cabildo, cercano a subte D, tren Mitre y múltiples líneas de colectivo. Rodeado de cafés, restaurantes, comercios, colegios y espacios verdes. Una zona tranquila, segura y con la calidez de barrio porteño.
Colectivos: 29, 57, 59, 60, 68, 130, 133, 152, 161, 168, 184, 194
Trenes: Núñez (MITRE)
🌿 Una casa pensada para quienes buscan diseño, comodidad, espacios verdes y una ubicación estratégica en CABA.
📞 Coordiná tu visita hoy y conocé tu próximo hogar en Núñez.
| Detalles | |
|---|---|
| Código | KP468532 |
| Categoría | Casas |
| Estado | Activa |
| Ubicación | Manzanares 2100 |
| Barrio | Núñez |
| Localidad | Capital Federal, Capital Federal |
| Tipo de operación | En venta |
| Ambientes | 5 |
| Dormitorios | 2 |
| Baños | 2 |
| Estacionamientos | 1 |
| Piso | 1 |
| Pisos en el edificio | 2 |
| Mts totales (mt²) | 243.00 |
| Mts cubiertos (mt²) | 135 |
| Mts no cubiertos (mt²) | 108 |
| Tamaño terreno (mt²) | 154.98 |
| Ancho terreno (mts) | 9.00 |
| Largo terreno (mts) | 16.28 |
| Año de construcción | 1930 |
5 Visitas al momento