Amplio PH a reciclar, con gran terraza, entrada independiente, con excelente ubicación en Barracas.
USD 265.000 - EN VENTA
Descripción
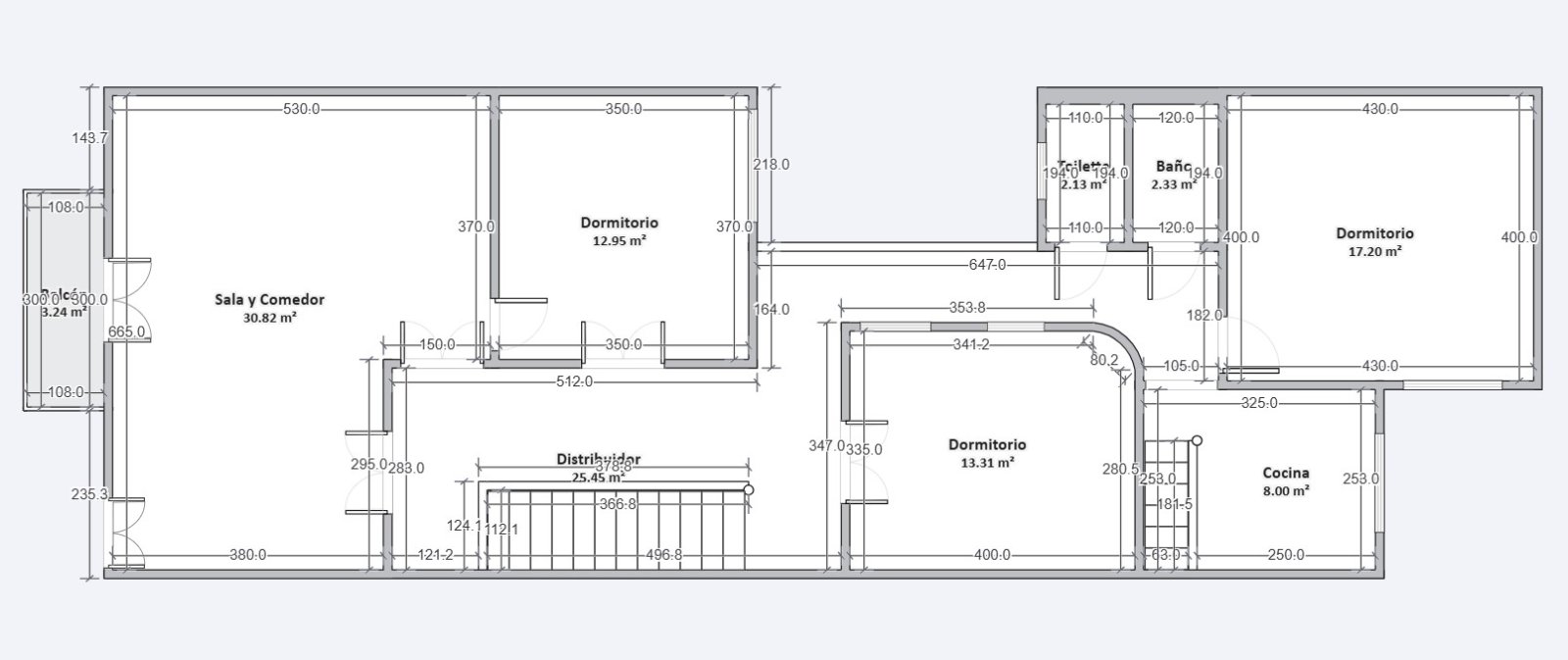
Muy espacioso PH con un enorme potencial para reciclar, ideal para quienes buscan crear un hogar a su medida.
En la primera planta cuenta con entrada independiente, dando paso a un hall de distribución que conduce a un amplio living comedor con grandes ventanales de piso a techo que brindan acceso a dos pequeños balcones con vista al exterior, tres amplios dormitorios, cocina con buen espacio de guardado, baño completo y toilette.
En el entre piso se ubica un segundo baño completo para mayor comodidad.
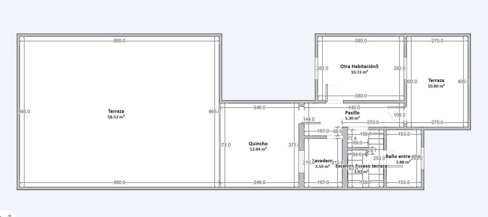
En la segunda planta, la unidad cuenta con una habitación adicional, Lavadero, un espacio cerrado ideal para taller o quincho y una amplia terraza perfecta para disfrutar al aire libre.
Ubicado en el corazón de Barracas, A solo tres cuadras de Av. Regimiento de Patricios, a metros de Av. Suárez y a una cuadra de la Autopista 9 de Julio, la ubicación ofrece una conectividad excepcional para desplazarse dentro y fuera de la ciudad.
Acceso a espacios verdes y plazas como Plaza Colombia, ideal para salir a relajarse.
Una creciente oferta de gastronomía y cafés barriales, con identidad porteña, ideal para el día a día.
Un barrio en transformación, valorizado y con demanda creciente.
Excelente oportunidad!
Transportes cercanos
Colectivos: 10, 12, 17, 22, 24, 25, 39, 45, 46, 51, 60, 70, 74, 93, 98, 100, 102, 129, 133, 134, 148, 154, 168, 195
Urbanity Real Estate junto a tus decisiones más importantes.
| Detalles | |
|---|---|
| Código | KP468337 |
| Categoría | PH |
| Estado | Activa |
| Ubicación | Montes De Oca 800 |
| Barrio | Barracas |
| Localidad | Capital Federal, Capital Federal |
| Tipo de operación | En venta |
| Apto credito | Sí |
| Ambientes | 5 |
| Dormitorios | 3 |
| Baños | 3 |
| Piso | 1 |
| Pisos en el edificio | 2 |
| Mts totales (mt²) | 256.02 |
| Mts cubiertos (mt²) | 148.21 |
| Mts no cubiertos (mt²) | 96.44 |
| Año de construcción | 1940 |
| Expensas | ars 130000.00 |
9 Visitas al momento