La propiedad indicada se encuentra Vendida
Oportunidad!, Departamento de 4 ambientes a refaccionar en Coghlan.
USD 150.000 - EN VENTA
Descripción
OPORTUNIDAD!, Departamento de 4 ambientes a refaccionar en el barrio de Coghlan.
El inmueble está ubicado en el barrio de Coghlan casi en su límite con Villa Urquiza y Belgrano.
La edificación corresponde a una construcción de categoria en Torre, en este caso son dos torres de 15 pisos cada una con un total de 217 unidades funcionales.
Cada torre posee tres ascensores y SUM. El estado de conservación del edificio es muy bueno.
Se encuentra a metros de la estación Coghlan del ferrocarril Mitre, a dos cuadras de la avenida Congreso, a cuatro cuadras de Olazabal y a tres cuadras de Melian. La transitan nueve líneas de colectivos.
Barrio residencial, rodeado de hermosas casas de categoría y varios centros educativos lo vuelven un excelente lugar para poseer una vivienda familiar.
Características generales:
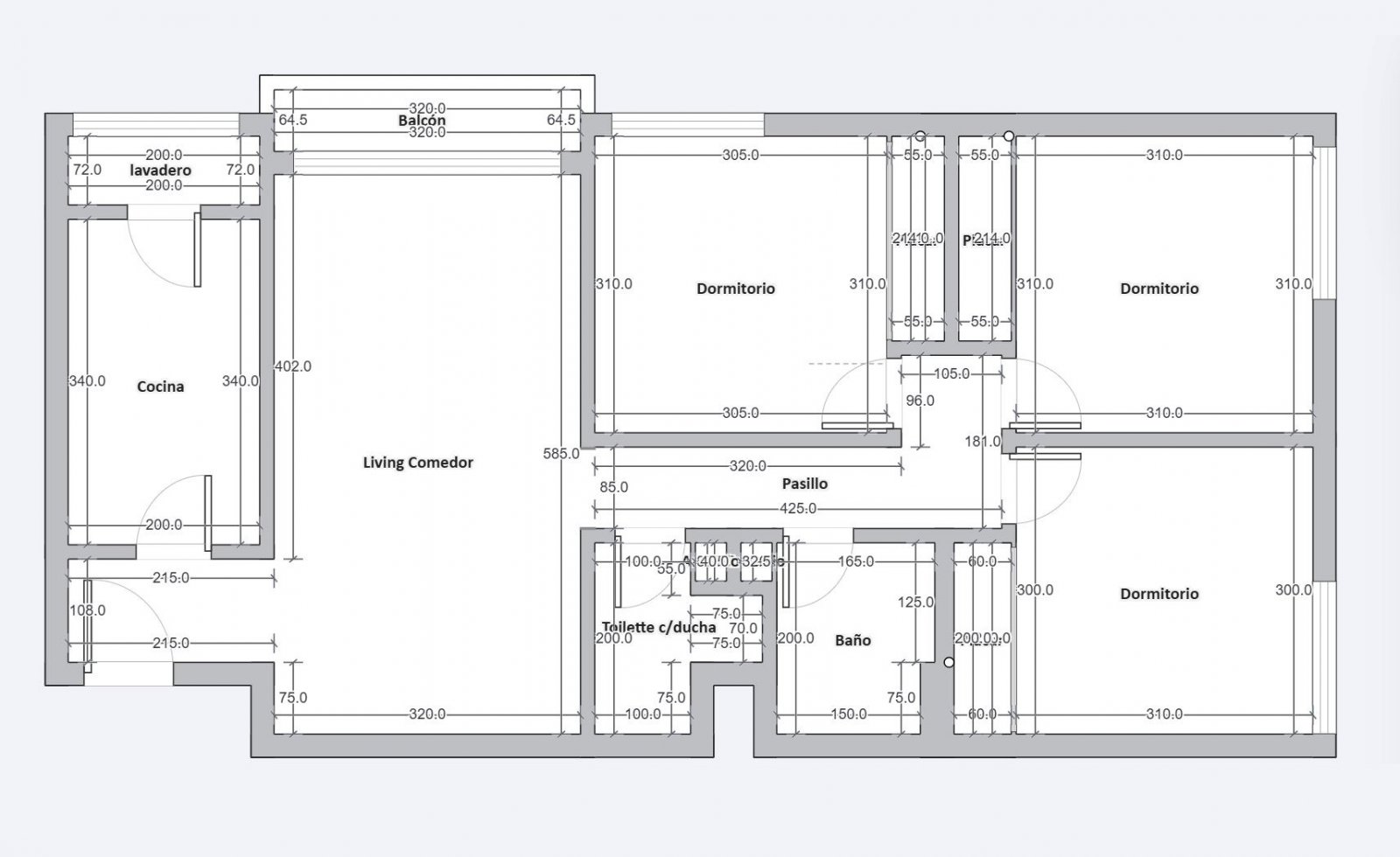
-La unidad cuenta con un living comedor con balcón, una cocina con lavadero,
toilette con ducha, baño completo y tres amplios dormitorios con placar.
-Cuenta con buena iluminación natural; principalmente en las habitaciones que dan al
contrafrente del edificio.
-La orientación es suroeste.
-La unidad cuenta con una superficie total por escritura de 78,11m2, distribuidos
en 74,52m2 cubiertos, 2,82m2 semi cubiertos y 0,77m2 de balcón.
-El agua caliente se obtiene mediante calefón.
-El edificio cuenta con un amplio SUM, con espacio al aire libre.
*APTO CREDITO HIPOTECARIO*
| Detalles | |
|---|---|
| Código | KP450036 |
| Categoría | Departamentos |
| Estado | Vendida |
| Ubicación | Pedro Ignacio Rivera 3900 |
| Zona | coghlan |
| Barrio | Coghlan |
| Localidad | Capital Federal, Capital Federal |
| Tipo de operación | En venta |
| Ambientes | 4 |
| Dormitorios | 3 |
| Baños | 2 |
| Piso | 2 |
| Pisos en el edificio | 15 |
| Mts totales (mt²) | 78.00 |
| Mts cubiertos (mt²) | 75 |
| Año de construcción | 1974 |
| Expensas | ars 140000.00 |
109 Visitas al momento